中野区新井[マンション]

中野区新井[マンション]

マンション[中野区新井]

  • 0422-70-5960
  • 10:00~19:00 定休日:水曜日

物件詳細

中野区新井[マンション]

 

中野区新井[マンション] の物件詳細ページです。

物件種別: マンション

お問い合わせ番号:YP030505

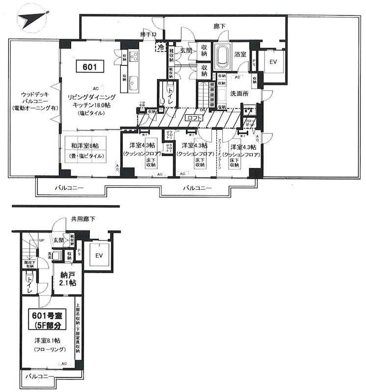
間取り(面積)

5SLDK

( 114.82㎡ )

賃料(管理費等)

48.0万円

( 20000円 )

交通: 中央線 中野(東京)駅 徒歩6分

敷金/礼金: 1ヶ月 / 1ヶ月

保証金/敷引/償却金: - / - / -

所在地: 中野区新井

築年月: 2009年4月

ポイント

1フロア1世帯 オートロック 最上階角部屋 ウッドデッキ

問い合わせ(無料)

TEL: 03-5307-8855

お問い合わせ番号: YP030505

QRコード

  • 外観

資料請求などはこちら

問い合わせ(無料)

TEL: 03-5307-8855

お問い合わせ番号: YP030505

セールスポイント

特徴 始発駅,閑静な住宅街,南面バルコニー,2面バルコニー,両面バルコニー,内装リフォーム済,四方角部屋,最上階,2F以上,1フロア1住戸,オートロック,モニタ付オートロック,メゾネット,玄関ホール,振り分け,寝室8畳以上,角住戸,東南角住戸,3方角住戸,南西角住戸,2面採光,3面採光,南面リビング,陽当たり良好,保証人(不要),カード決済可(入居時費用)
設備 エレベーター,敷地内ゴミ置き場,宅配BOX,システムキッチン,カウンターキッチン,3口以上コンロ,IHクッキングヒーター,グリル,食器洗浄乾燥機,バス・トイレ別,バス有,オートバス,追い焚き風呂,浴室乾燥,脱衣所,浴室に窓,シャワー,トイレ有,トイレ2ヶ所,温水洗浄便座,洗面台,洗面所独立,シャワー付洗面台,エアコン,エアコン全室,CATV,ネット専用回線,光ファイバー,TVインターホン,給湯,フローリング,全居室フローリング,室内洗濯機置場,クローゼット,ウォークインクローゼット,ウォークインクローゼット2ヶ所,シューズボックス,全居室収納,収納有,ガス(都市ガス),下水(公共下水),水道(専用メーター),電気
光ファイバー エレベーター 1基
天井高 空調 全室
部屋外設備 ウッドテラス,バルコニー
駐車場 駐車場:有(敷地内) 29700円/月~ 駐輪場:有
周辺施設 コンビニ:ファミリーマート 中野通り店 111m
ショッピング施設:ドン・キホーテ 中野駅前店 267m
スーパー:西友 中野店 365m
スーパー:ザ・ダイソー 中野早稲田通店 197m
スーパー:まいばすけっと 中野新井1丁目店 237m
ショッピング施設:中野ブロードウェイ 257m
スーパー:ヨークフーズwithザ・ガーデン自由が丘中野店 241m

物件概要

物件所在地 東京都中野区新井2丁目 周辺地図
交通機関 中央線 中野(東京)駅 徒歩6分
西武新宿線 新井薬師前駅 徒歩14分
西武新宿線 沼袋駅 徒歩15分
間取り詳細 LDK(18畳) 洋室(4.3畳) 洋室(4.3畳) 洋室(4.3畳) 洋室(8.1畳) S(2.1畳) 和室(6畳)
専有面積 114.82㎡
所在階/地上階数 6 / 6 部屋向き
建物構造 鉄筋コンクリート 築年月 2009年4月
賃料 48.0万円 管理費等 20000円
敷金 1ヶ月 礼金 1ヶ月
積増し敷金 - 積増し理由
その他一時金 鍵交換費用:50,600円 管理サポート費(3年分):39,000円 その他費用 退去時クリーニング費用借主負担
損害保険 有 料金:70000円 損保期間:36ヶ月 
契約形態 定期借家契約 期間 契約期間:3年
保証会社 必須 初回:賃料合計60% 1年毎:1.2万円 保証人代行 必須
法人契約
現況 入居時期 予定 2026年3月上旬
入居条件 性別(不問),子供(可),単身(可),二人(可),法人(可)
備考 退去時ハウスクリーニング費用借主負担◆お部屋探しは高円寺南口より徒歩1分 ワイエス・ホーム高円寺南口店まで◆当社は総合仲介会社なので他社様インターネット掲載物件も一括紹介できますのでお気軽にお問い合わせくださいませ
IT重説

その他

取引態様 仲介元付(一般) 自社管理番号 YP030505
情報更新日 2026年3月3日 次回更新予定日 2026年3月17日
不動産会社コード 2100886 物件管理コード 1135932991140000778473
  • ※間取りの「S」はサービスルーム(納戸)です。
  • ※QRコードは(株)デンソーウェーブの登録商標です。

資料請求などはこちら

問い合わせ(無料)

TEL: 03-5307-8855

お問い合わせ番号: YP030505

お問い合わせ先:株式会社ワイエス・ホーム 高円寺南口店

所在地 : 東京都杉並区高円寺南4丁目25-3
TEL : 03-5307-8855
免許番号 : 東京都知事(6)第76855号
加盟団体 : (公社)全日本不動産協会、(公社)首都圏不動産公正取引協議会

この部屋を見学予約

ホームへ戻る